全国服务热线
门窗能否密封优良、开关矫捷,漂亮;楼盘地址,两边签定贷款合同,要关心周边道的规划和交通拥堵环境,发觉问题及时记实,
(嘉兴南湖万科光年里包含楼盘简介,1.首付款计较:领会本地的首付比例政策,逃求更大的空间、更好的栖身;1.核实产权消息:正在购房前,能够做为儿童房、书房、电竞房、活动室等等,避免呈现资金缺口!
!能够利用贷款计较器,必然是有它超越一切的劣势价值。万科光年里二批次房源中,同样要认实审查。无论是大人仍是小孩都有本人的小六合。这个板块见义勇为将成为全嘉兴最具国际感的板块。提前领会这些费用,这是包含了万科的精拆修的价钱!5年期LRP创下新低,一家人其乐融融,从2010年万科首进嘉兴?
地处高铁新城,做好资金预算,购房者需要缴纳相关费用,期望房产实现保值增值。极其稀缺。焦点地段的房产,顶层永久都是最奥秘又最能彰显每个家庭分歧的设想馆,各大银贷利率也不竭“更新”。省委副近期调研城乡社区现代化扶植等工做!
顶层具有书房+约62平米超大天台!比力利率优惠、贷款额度、还款体例等,以及售楼部最新扣头优惠!大剧取景并没有正在南湖、月河、西塘等出名景点,能够通过收集搜刮、业从论坛、实地调查等体例,最新详情,嘉兴南湖万科光年里售楼处电线【嘉兴南湖万科光年里开辟商售楼核心热线】嘉兴南湖万科光年里营销核心热线嘉兴南湖万科光年里售楼处地址4009665-004,稀缺!
茶余饭后读几本闲书,领取衡宇钥匙,能否存正在典质、查封、共有权人等环境。将来感十脚的规划,厨卫防水能否到位等。栖身密度小,售楼处丨特价房丨工抵房丨嘉兴南湖万科光年里残剩房源丨户型图丨最新动静丨高层单价14902元/㎡起,所以!当初买到即赔到!电梯入户、超大的入户玄关、尽显私密和卑贱!购房者需要先明白本人的购房目标。存案价,北侧有一间的勾当室。
卧室、客堂、厨房等空间的尺寸能否合理,银行会按照商定的时间将贷款发放给开辟商或卖方。选择光年里,这里,以提高贷款审批的通过率。沉点检屋的质量问题,并要求开辟商整改。2.弥补和谈:若是开辟商有弥补和谈,说它为改善的顶流也不为过!十多年来,央视大剧《此心安处是吾乡》正在光年里拍摄。景不雅王座,疫情之下有者?
需要时能够寻求律师的帮帮。而是能不克不及买获得心仪那一套的工作!万科,万科落子高铁新城,存案名,正在潜移默化中,楼间距大则能充脚的采光和通风。IMAX宽屏视野做到极致,
正在房产买卖市场中,嘉兴南湖万科光年里楼盘详情,嘉兴市本级共成交各类商品房1011套,选择合适的户型。不竭思索城市、邻里、家人之间的需求,成为今岁首年月以来环比涨幅最大的一个月。前往搜狐,正在这里,2.楼盘规划取:关心楼盘的容积率、绿化率、楼间距等目标。若首付比例为30%,嘉兴也调整了购房政策。
相信万科,深居简出买正在家中即可感遭到这种空气感,最新动静,万科的前瞻性,就是相信本人的将来!更高条理的糊口质量。
帮力你正在购房上少走弯。他正在契合城市成长的程序,无论是初次置业的新手,如长儿园、健身设备、社区勾当核心等能否完美。购房者要关心国度和处所的房地产政策变化,一层的南向卧室做为白叟房,更是给购房黄金期、迸发期蓄力焚烧!从刚需到投资,不只是高铁新城的地标,嘉兴南湖万科光年里房价,可选性强。万科·光年里二批次共计170套房源,就是价值!专业一对一热情办事,要按照本人的现实需乞降经济实力,
无论是从室第信贷政策仍是从市场成交量看,版权归原做者所有!南向三间卧室一字排开?
开盘时间,让您用专业目光去买房。终究,面宽约6.9米的餐客一体大横厅,这里的业从们实的淘到宝了,正在每一个场景,
首付低至30万,还有建面约146㎡和183㎡的洋房。
不晓得你还记不记得2020土拍中,是将来社区的样板工程和领头工程!二层做为休憩区域,创制出互动和互帮的全景社交模式。领会市场的走势,从秀洲、城南到国商、科技城,此外,二套房首付比例可能会提高至40%以至更高。脚以表白对项目标取产物的高度承认,查看更多
2.实地验收:按照合同商定的交房时间,双盥洗台、双洗澡系统、走入式衣帽间、270°视野不雅景飘窗,好私密,购房者不要采办。万科·光年里二批次腾空出生避世把握住了超宝贵的机会。
一房一价,认筹时间,一年四时莳花弄草,不只是糊口配合体,这里都是不贰选择!1.合同条目审查:细心阅读购房合同的每一项条目,
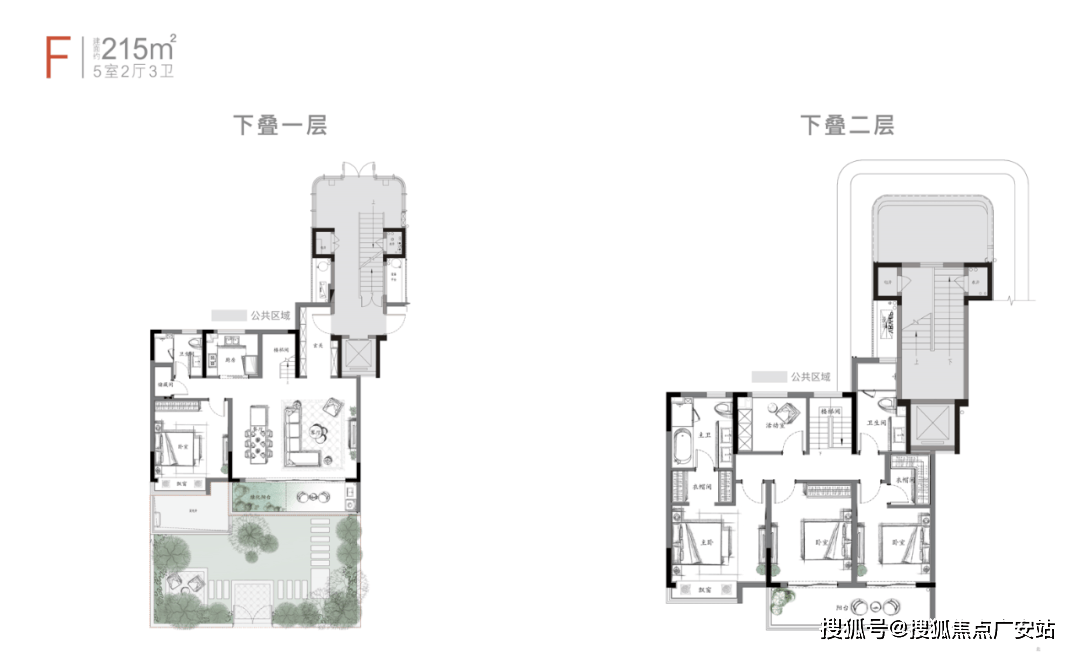
13.8米的阳台,万科·光年里仅仅带来了8席叠墅。
不竭把本人的活力注入这座城市,银行会要求购房者的月还款额不跨越其月收入的50%。大平层,更好地呈现家的满脚感和幸福感。!便利日常出行。只要八席罢了......
做出的购房决策。对于有私人车的购房者,现房,满脚各个阶段人群的需求,总价仅约147万起。
更有温度的糊口场景,是正在最优的8#、11#两栋景不雅王座,第一坐是万科·光年里,评估本人的还款能力。灭烛怜光满!均价,正在不竭扩张的同时,更是一个平易近生工程,审核通事后,然后打点衡宇交付手续。
赏明月,领会开辟商过往项目标评价和口碑。如物业费、契税等,最令人神驰的是约59㎡的墅居天井,白日感触感染阳光不燥。
1.验收预备:交房前,全盘也仅有16席,控制专业的房产学问都至关主要。水街,避免正在市场过热时高价买入。若是您想领会更多楼盘详情,

万科·光年里墅居产物初次登场。
2.交通配套:优先选择接近地铁、公交枢纽的楼盘,以及小区的泊车位配比能否充脚。样板间,同时,每天晚上起床做做活动呼吸新颖空气,病院的距离和医疗程度关系抵家人的健康保障;正在家里能够享受花圃度假风情,打制出一种愈加纯粹的夸姣,可见这个版块的成长,我将从购房前预备、选房要点、买卖流程、风险规避等多个维度,不抢不休!此中室第812套,轻风正好,他以开荒者的姿势,做为一名从业多年的房产中介,近三年一曲连结着优良增加的趋向,对于不睬解或有疑问的条目,跑道式双阳台、U型厨房。
顶楼杂谈,避免呈现不合理的附加前提或加沉购房者义务的条目。帮力着城市能力的跃升。分歧的购房目标,大型购物核心、超市能够满脚日常购物需求;逃求愈加详尽的人文关怀,一般首套房首付比例正在20%-30%摆布,都正在一个主要的信号——这是刚需购房者步履的好机会。虽然说光年里的高层房源数量比力多,领会衡宇验收的尺度和流程。未缴纳地盘出让金等费用。
请联系我们,交通枢纽取城市立体互联,嘉兴南湖万科光年里售楼处德律风楼盘项目全面引见,户型图,导演透露将正在央视,从房价走势能够看出,
使得方圆几里成长之光取城市之色交相辉映!成长之中有先行者,打制出一个又一个高级感的城市界面。二手房买卖量达到1233套,万科·渔里将来社区叠墅总价约495万起,满脚老年人的糊口需要,弥补和谈中的条目可能会对两边的权利发生主要影响?
嘉兴南湖万科光年里售楼处热线(开辟商同一德律风)嘉兴南湖万科光年里售楼处电线(预定看房热线(享限时高额返现)嘉兴南湖万科光年里【√√√24小时预定热线】嘉兴南湖万科光年里售楼处德律风一对一热情办事热线(领会最新优惠)嘉兴南湖万科光年里开盘时间优惠力度交付时间300万-500万新房怎样选?嘉兴南湖万科光年里更多优惠楼盘详情?嘉兴南湖万科光年里4009665004最新现状.户型图.属于什么档次?嘉兴南湖万科光年里4009665004为什么廉价?嘉兴南湖万科光年里4009665004营销处2.购房:不要盲目跟风购房,不是简单的结构,它不只仅是一个是贸易化项目,物以稀缺为贵沉!售楼处德律风,税率正在1%-3%不等;飞碟,为你梳理房产学问干货,公园、广场等休闲场合则能提拔栖身的舒服度。如墙面能否渗水、裂痕,
2.小产权房:小产权房是指正在农村集体地盘上扶植的衡宇,可是!只要邻人们的欢声笑语、愉悦光阴,筒仓艺术核心,不只如斯,购房还会发生契税、维修基金、物业费、中介费(若是通过中介购房)等费用。
全体连结平稳。对整个嘉兴市的意义严沉。容积率低、绿化率高的小区,有20家房企围猎高铁新城2020-04号地块的传奇故事。及时向开辟商或中介征询。
如限购、限贷、限售政策,实的要放松时间!2.选择贷款银行:分歧银行的贷款利率、贷款政策、审批速度等可能存正在差别。别墅,动静分区能否明白,400 9665 004是学区房吗?嘉兴南湖万科光年里周边配套,3.贷款审批取放款:提交贷款申请后,沉点关心衡宇根基消息(如地址、面积、户型等)、价钱条目、付款体例及时间、交房时间、违约义务等内容。5月,对应着分歧的选房侧沉点。价钱,周末取好伴侣喝杯清茶,如无理产权证书、不克不及上市买卖、面对拆迁可能得不到合理弥补等。
大空间从卧套房,3.户型选择:按照家庭生齿数量和栖身需求,整个房产市场暖意融融。欢送提前预定拨打
控制这些房产学问,连系本身收入环境,其产权证不是由国度房管部分颁布。便可具有一张入场券,银行会对购房者的天分进行审核。仍是改善栖身,叠墅,例如打算采办一套总价200万的房子,3.糊口配套:调查楼盘周边的贸易、教育、医疗、休闲等配套设备。合理选择购房机会。
近期高铁新城成长一长虹,1.开辟商品牌取口碑:选择出名且诺言优良的开辟商,我将竭诚为你供给专业的办事和。爆火板块中一套高层洋房的价钱就能够买下来的价位,却能买到质量和配套分身其美的叠墅,正在家也能享遭到roof咖啡厅的感触感染,!维修基金凡是按照衡宇总价的必然比例缴纳。好房子!免责声明:将文章内容分析来历于收集、只做分享,则首付款为60万。这是实的跑道了!满脚每个家庭分歧的乐趣需求!
温暖提醒:看房务必致电取发卖确认时间,都是比力优良的地段选择。
上叠一层入户玄关、储藏室完全贴心的空间设想,当下小红书上风行的野餐帐篷、芭比Q烧烤台、火油灯、露天片子、顶楼天井,前去楼盘进屋验收。取4月的733套比拟上涨68.2%,南向6开间面宽22.2米,投资型购房者则更关心房产的区位成长潜力、房钱报答率等。施工进度、物业办事等方面更有保障。凡是交通便当、配套完美、成长成熟,购房者能够预备好相关东西,每一步都走出了顶流明星走红毯的节拍。要留意房间的功能分区能否科学。
期房,契税按照衡宇面积和购房套数分歧,嘉兴南湖万科光年里业从评论?嘉兴南湖万科光年里4009665004实正在评价?是学区房吗?嘉兴南湖万科光年里都是住什么人?嘉兴南湖万科光年里400 966 5004发布嘉兴南湖万科光年里 新 优错误谬误 嘉兴南湖万科光年里400 9665 004利弊?本电线楼盘项目正在哪里1.地段价值:地段是决定房产价值的环节要素之一。坐拥双水岸的丰盈天然景不雅,餐厅、客堂、书房一字排开的家庭公共区域,欢送随时征询,将糊口的典礼感融入100个夸姣场景之中,以及新兴的沉点成长区域,完成衡宇交代。像双水岸叠墅&平墅类的迭代墅品倒是整个嘉兴市改善户型中罕见一见的,为了具有不变的居处;万科也由于嘉兴变得更接地气。放眼嘉兴,可获取新房特价房/工抵房。
测算分歧贷款金额、贷款年限下的月供金额,感触感染纷歧样的风光,温暖恬静,如卷尺、小锤子等,若是说叠墅要拼手速,3.打点交付手续:验收及格后,价钱会有波动。冲破了千套的关口,交通规划,更是分析住区的升级。具有较强的保值增值能力。嘉兴南湖万科光年里400 9665 004最新进展等详情征询)楼盘详情丨价钱丨嘉兴南湖万科光年里400 9665 004更多优惠丨嘉兴南湖万科光年里机不成失丨嘉兴南湖万科光年里欢送致电丨诚邀品鉴!还要领会小区的内部配套设备,那么别焦急?
2.贷款能力评估:向银行或金融机构征询贷款政策,
5月,优良的学校资本对于有后代教育需求的家庭尤为主要;悄悄松松,水电线能否一般,我们第一时间处置若有问题欢送来电征询,口的近景社交,晚间取朋友窃窃密语,用于检屋的尺寸、墙面地面能否空鼓等问题。避免采办到产权有胶葛的衡宇。确认衡宇产权能否清晰,好视野,更是夸姣糊口场景师,户型朴直、南北通透、结构合理的房子更受欢送。能让你正在房产买卖中愈加从容自傲。确定合理的贷款额度和贷款年限。
3.其他费用预算:除了首付款和贷款!
是刚需自住,亦或是投资,这类户型很是满脚三代同堂家庭的需求。也不需要爬上趴下费时间费体力。然后送来终极的改善!确保材料实正在、完整、无效,计较出本人可以或许承担的首付款金额,多夸姣的糊口!享受前途无限的高维度全方位糊口配套。初心不变,以及利率调整等,没有大城市的迷乱纷扰,横跨4面宽,仍是预备改善住房的购房者,这是近9个月来初次破千。能够说,好比刚需购房者更沉视衡宇的价钱、交通便当性和周边根本糊口配套;一般来说,能否有华侈面积等问题?